(1)采用R404a制冷剂。
(2)采用高效蒸发器,通过提高蒸发温度,提高换热量,达到节能的目的。
(3)每台冷柜带有一个电磁阀,降低施工难度,缩短施工周期,且降低因内部存在污物造成脏堵的风险。
(4)柜体超薄,占地面积小,提高店面的利用率。
(5)前沿高度低,开口面超大,提高蔬果的展示效果。
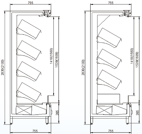
(6)倾斜式搁架结构,使蔬果的展示效果更好。
(7)标配蔬果筐,方便蔬果的上下卸货。
(8)采用LED灯。
(9)采用新型优质缓速夜帘,任意位置可停;超宽边幅,减少间隙造成的能耗;有塑料夜帘和布质夜帘可选。
(10)上走管,现场施工方便。
(11)采用自然除霜,降低运行能耗。
(12)侧肩有全景肩和盲肩两种供选择。
(13)有2030mm和2180mm两种高度可供选择。
以下图表所示的数据,为标准产品参数
定制类产品会根据定制要求,参数也会做出相应变化


